Pozemky - bývanie na predaj v lokalite Tvrdošovce v okrese Nové Zámky
?️ Stavebný pozemok pre Váš nový domov v Tvrdošovciach!
Lokalita: Obec Tvrdošovce, okres Nové Zámky
Typ pozemku: Pozemok pre rodinné domy
Rozloha: [Doplňte m² - napr. 1815 m²
Popis pozemku:
Ponúkame na predaj krásny, slnečný a rovinatý stavebný pozemok, ktorý je svojou rozlohou a orientáciou pripravený pre výstavbu Vášho vysnívaného rodinného domu.
Svojou polohou zabezpečuje maximálne súkromie, nakoľko z ulice má kratší príjazd do uzavretej lokalizácie.
Lokalita: Nachádza sa v tichej a pokojnej časti obce Tvrdošovce, s dobrou dostupnosťou do centra aj do blízkych Nových Zámkov (cca 13-14 km).
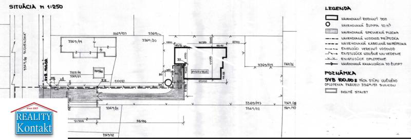
Inžinierske siete (IS): Elektrina, plyn, voda sú dostupné pred pozemkom / Siete sú v dosahu na hranici pozemku.]
Okolie: Pozemok sa nachádza v zastavanej časti obce, v blízkosti už prebieha výstavba nových rodinných domov, čo zaručuje príjemné bývanie v rozvíjajúcej sa komunite.
Využitie: Pozemok je ideálny pre jednu rodinnú stavbu s potenciálom....
Obec Tvrdošovce ponúka:
Kompletnú občiansku vybavenosť (škola, škôlka, obchody, služby).
Dobré dopravné napojenie a infraštruktúru.
Prečo kúpiť práve tento pozemok?
✅ Rovinatý terén šetrí náklady na stavebné úpravy.
✅ Tichá lokalita pre pokojné rodinné bývanie.
✅ Pripravené IS (alebo IS v dosahu) urýchlia začiatok výstavby.
? Neváhajte a kontaktujte nás pre obhliadku!
Urobte prvý krok k Vášmu novému domovu ešte dnes!
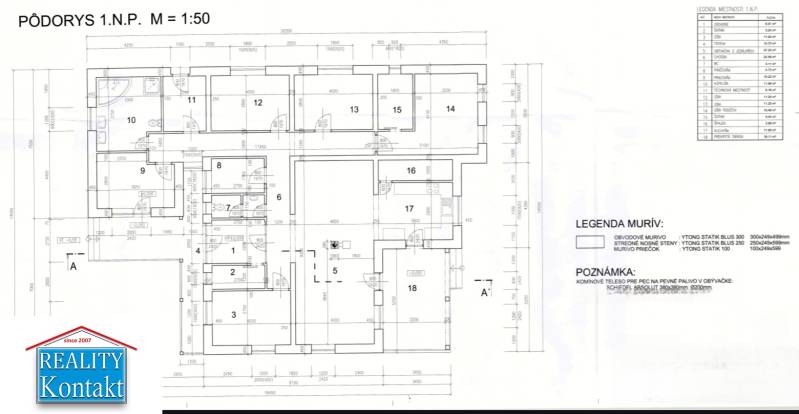
Spolu s pozemku ponúkame aj odkúpenie projektovej dokumentácie IBA za +2000 eur.
Podrobné informácie
Poloha nehnuteľnosti na mape
Tvrdošovce, Nové Zámky, Slovensko


